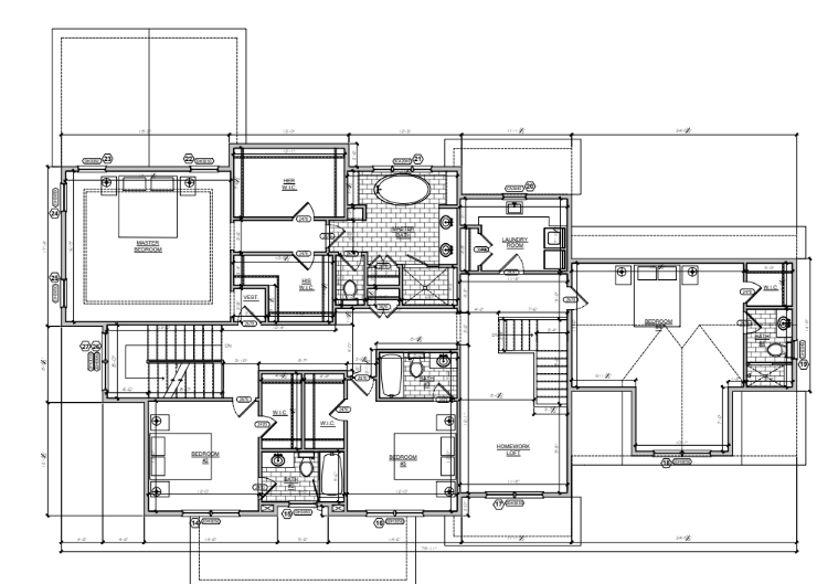
Upstairs, the owner’s suite is a private retreat with two walk-in closets and a spa-like bath showcasing a free-standing tub, separate shower, and designer tile. Three additional bedrooms, each with natural stone or quartz bathrooms, plus a convenient laundry room complete the level. The finished lower level includes a bedroom with en suite bath, a game room, an exercise room, and ample storage. Situated on a large, pool-ready lot and backed by a builder warranty, this home combines high-efficiency systems, designer finishes, and the rare opportunity to customize—making it the perfect canvas for your dream home.
5435 Mohican Road
Bethesda, MD
LOCATION
Bethesda, MD
BEDROOMS
5
BATHS
6
SQ. FT.
6097
ACRES
Home Details
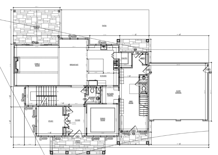
Experience over 6,000 square feet of exceptional living in this stunning new home by Castlewood Builders and Terra Innovations, set for completion in early summer 2026. Spread across three beautifully finished levels, this residence offers at six bedrooms, four full and two half baths, and a first-floor study. The main level is a showstopper, featuring a chef’s kitchen with granite or natural stone countertops, a large island, and high-end appliances, plus a breakfast room, formal dining room, and a family room with a custom-mantled gas fireplace. A mudroom with custom built-ins connects to the two-car garage, while a covered porch and flagstone patio create seamless indoor-outdoor living.
No results found.
Home Features
— New construction
— Chef’s kitchen with GE Monogram appliances
— Owner’s suite with spa bath
— Finished lower level with game & exercise rooms
— 2-car garage
— Gym
— Large, pool-ready lot with covered porch
Location
Bethesda offers the perfect blend of small-town charm and big-city convenience, making it one of the most sought-after places to live in the D.C. metro area. Tree-lined streets, vibrant shopping districts, and a thriving dining scene create a welcoming atmosphere, while top-rated schools and easy access to major employers add everyday convenience. From the upscale boutiques and restaurants of Bethesda Row to the miles of nearby trails and parks, this community offers something for everyone—whether you’re seeking a lively social scene, family-friendly amenities, or a quick commute to downtown Washington, D.C.
— Glen Echo Park 0.8 mi
— Capital Crescent Trail 1.5mi
— Kenwood Golf & Country Club 1.7mi
— Bethesda Row 3.1 mi
— Downtown DC 7.2 mi
— Ronald Reagan Washington National Airport 10.5 mi
About Terra Innovations
As an ever growing and diversifying asset management firm, we’re real estate developers and speculators, risk-return specialists.



